Skip to Content

Our Brands:

Civic

Sandra Day O’Connor Circuit Library

Project Facts

Location

Phoenix, AZ

Client

US General Services Administration

Project Type

Justice

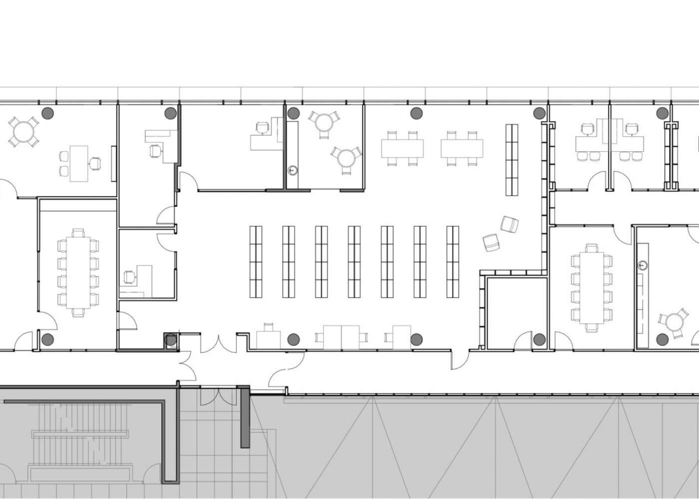
The United States General Services Administration (GSA) Region 9 requires Design and Construction Administration (CA) services on the fourth floor of the Sandra Day O’Connor US Courthouse located in Phoenix, Arizona. The project consists of demolishing the current circuit library and renovating the space into three separate spaces to include Senior Resident Judge Chambers, Condensed Circuit Reference Library, and Visiting Judge Chambers. Access to these spaces will be through an entry vestibule.

Share On:

Explore More

Superior Court of California